Red Hill VIC 3937
Australia




















Overview
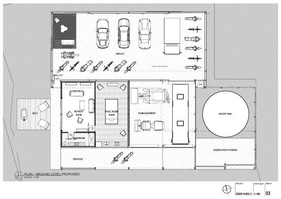
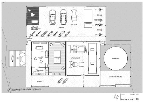
The Über Shed is designed to find the balance between a large covered storage space and a finely crafted residence. The clients wanted to store and enjoy their large collection of “stuff” in a space that did it justice.
-38.355, 145.016
Structure
When approached for the job, Jost Architects had an interesting predicament, given the existing conditions. The shed was clearly not big enough for all the clients things, and the off-the-shelf structure had no visual appeal whatsoever. The structural steel framing was only four years old however, and in great condition. The first concept design convinced them to retain and reconfigure the existing shed, and the clients loved it so much there was no need for any conceptual design changes from that point on.
The designers have significantly reduced the embodied energy output by re-purposing an existing building and lining it with sustainable materials such as recycled timber parquetry flooring and decking, Victorian ash and plywood cladding. The result is a considerably low carbon footprint building.
The volumes of waste generated in the build phase was significantly lowered through reuse and re-purposing of materials that would otherwise have been discarded.
The use of structural plywood panels on the steel structure greatly increased the bracing of the non-rigid frame. The panels allow the building to move without cracking or damage to the internal linings, which would likely have occurred had the lining been a non bracing material like plasterboard or a rendered surface.
Jost maintain that they always attempt to source local products, minimising transportation and thereby reduce the carbon footprint of their buildings. Using certified timber not only ensures that the environment is protected, but it ensures high quality and long lasting material use, with local species also having the benefit of being well suited for the local environment.
Exterior
The cladding used was Iron Ash (Victorian ash) 120 x 19mm timber boards, and a variety of sections of Vic ash battens. The timber was coated with an oil in a ‘black ash’ tint, with a natural finish.
The timber cladding and battens that lined the new part of the shed were selectively incorporated into the old part, primarily for screening utilities areas. The use of timber also connected the old shed to the new addition, by creating a continuity through the two, making it look like a new building both inside and out.
The timber is not only durable and sustainable, but creates a layering of visual texture. It can be viewed at different angles and distances, revealing various aspects of its grain, finish and colour, and shifting the perspective through to the building behind.
Timber not only suited the building typology, but conceptually the material blends further into its natural surroundings beyond the interior.
Interior
The dark stained ply panels are used on internal walls throughout the building. They provide a tough lining that suits the agricultural and practical requirements of the farm equipment and are used as concealed cupboard doors for storage areas. The durable lining is carried all the way through the building, allowing for a consistent finish that also provides a homely feel to the habitable areas.
The interiors of the Über Shed 2 were driven by the need for hard-wearing materials, suitable for use as a storage and agricultural building. This is combined with the aesthetic requirements and tastes of the client and the design intent for the building to blend into the beautiful native rural Australian setting. The combination of timber, plywood and exposed galvanised steel framing, creates an internal visual framework that blends with the rural setting beyond.
The resulting convergence of shed and home creates a giant volume. The extensive use of timber helps to make the space feel like part living room, part museum and part working space. It’s a place for entertaining, viewing nature, and it's endlessly adaptable. The colour and feel of the variety of timber linings used compliment the palette of timbers in the surrounding bush lands. The combination of eccentric furnishings and objects and timber lined interiors make the space almost feel like an old cattleman’s hut.
The recycled timber parquetry floor in the sitting area and the wall lining in the bathroom was from a locally sourced demolition site, and comprises a mix of southern eucalypts, primarily messmate. The solid timber stools were also recycled, and were made from old telephone poles.