Tower House – defying expectations

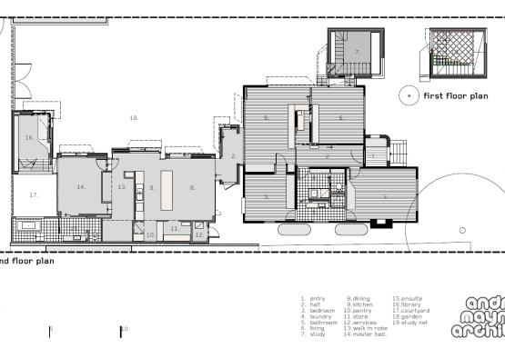
This project creates a unique aesthetic by contrasting the external appearance of many small structures with large, connected interior spaces.
Project Name
Tower House
Case Study Type

Overview

The proposition of Austin Maynard Architects was to create a series of small structures of a scale and texture that did not dominate its context. Tower House is anti-monolith. A village externally and a home internally. The house defies logic as the exterior appears to be a series of small structures, while internally the spaces and functions are large and connected.

Timber is used selectively to enhance the quality of the build, to provide warmth and texture and to create an atmosphere of tactile beauty.

 

Exterior

Western red cedar shingle cladding is used throughout the exterior of the new addition. The shingles were selected as a natural timber material to provide a counterpoint to the white, machine made, straight-lined colorbond cladding, used on the sides and roof of each ‘tower element’. Each face with shingle cladding has its own personality provided by the natural quality of timber, random pattern and hand-installation. Cedar shingles are brought through from the exterior into the wall lining of the project in selected locations – hiding the door to the master bedroom.

Interior

Timber is used selectively in this project to enhance the quality of internal spaces, to provide warmth and texture and to create an atmosphere of tactile beauty within the house. The Cedar shingles from the exterior of the building are brought through into choice locations, such as wall lining and to clad the door to the master bedroom. Within the kitchen and dining room plywood sheeting conceals doors and joinery, as well as softening the room. The spotted gum lining in the study creates a chapel like atmosphere. Spotted Gum internal lining to the walls and ceilings, western red cedar shingle wall lining and door cladding and hoop pine wall lining, door cladding and cabinetry are present within the project. Within the kitchen and dining room plywood sheeting conceals doors and joinery as well as softening the room as a balance to the white plaster finish, the steel bench top and the concrete floor.

Related case studies

Are you looking for a supplier?

Start Your Search

Social Media Feeds