













Overview
The Australian Timber Design Awards have named Zanazan Architecture Studio the 2016 Winner of the Fitout Featuring Decorative Sliced Veneers recognition category.
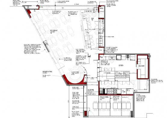
The winning project, Lilly’s Espresso & Cucina, is located within an established shopping centre. In this tall but fragmented space, the client sought to increase patron numbers (both inside and out) and create a united dining room without increasing the leased area. The final design needed to suit both day and night trading with minimal impact to business during the construction phase. An irregular space created design challenges, requiring precision to enable the entire fit-out to be built off-site, then assembled on site in less than three weeks. Taking the geometry of the lease line into a more fluid form, the design creates carefully framed views. The use of mirrors and the placement of screens shape the dining experience. Relying on material selections, form, lighting and layout, the designers have created a sense place far from the madding crowd of the shopping centre. The rich natural tones contrast against black edges and deep shadows create a layered interior. The design relies on the materials imparting their texture, colour and patina. The sensuous curved ceiling draws patrons inside, while also serving to conceal lighting, air conditioning, security, audio services and the myriad existing services and infra-structure of the base building.
Interior
The timber elements of the fit-out provide the material warmth and colour for the restaurant walls. The fit-out reimagines an element generally perceived to be rigid as a more fluid form. Large veneered panelled walls that make up the cladding to the shopfront, the bar, and the kitchen, assisting to conceal or reveal as required. Frame mirrored walls extend the space. Using veneered board, edged and spaced with steel edge allowed the floor to meet the ceiling in a single material finish. Lighter coloured timber veneer was used to create a clean look and create the impression of solid timber.
The Circular Booth (Banquette) Seat and connected bar seating are feature elements. The seating booth is fabricated using solid American Oak battens carefully aligned with the veneered (oversized) ceiling battens to create a circular seat that anchors the dining room. Its form and structure veils the kitchen from view and provides a private space within a larger open dining area. The batten screen leads onto a waiter station and a bar seat that enjoys external vires framed by aligning timber elements.