Kihilla

Kihilla is a modest and elegant getaway in the Blue Mountains, inspired by the workers cottage typology.
Project Name
Kihilla Retreat, Blue Mountains, by JTBarclay
Case Study Type
Location

Katoomba NSW 2780
Australia

Consultants
Architects
Photographer Details
Owen Zhu

Overview

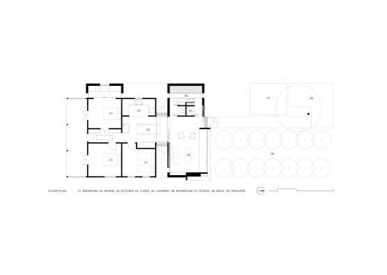
Kihilla, by JTBarclay, is a small getaway and eventual retirement home addition, located in the Blue Mountains, NSW. The building takes reference both from workers cottages in the area, and from lean-to extensions. Barclay abstracts the clichéd lean to style, to create a modern but contextual gem. 

-33.7125, 150.311944

Structure

The scientific characteristics of each timber species were carefully considered and purposefully used in each situation. Moisture resistant cypress and beech were used externally, while red gum was used for its strength and stability. Recycled Douglas fir was used for it’s low embodied energy, and hoop pine was valued for the investment in the industry. 

Solid Radiata pine and Radiata LVL’s were used as studs and bearers for the project. The recycled Douglas fir was used for the roof structure, and given its properties it dictated the roof span, resulting in design being influenced by material. 

Exterior

In order to reference the original cottage, Barclay chose to explore the potential of the weatherboard, juxtaposing two different styles in the addition. 

Repairs to the existing cottage utilised western red cedar, whilst the cladding and privacy screens of the addition were Australian cypress. The rough sawn cypress weatherboards exposed the rich heartwood, and 20mm gaps allowed ventilation through the structure.

Decking was spotted gum timber.

Interior

The existing orchard on the property was celebrated in the new design, becoming a core focus of the living and communal spaces in the new house. An restored workers bench from the cottage was the main focal point inside the house, forging a circulation path around it. 

 A custom river red gum sliding window creates external flow through the feature bay window near the entrance. 

As the existing floor substructure was due for maintenance, a decision was made to unify the old and new structures floor language through the use of new local blue gum floorboards.

Related case studies

Are you looking for a supplier?

Start Your Search

Social Media Feeds